Top modern logistics facilities located just next to main highway E45, only 20 minutes from central Aarhus. Thea area offers great conditions to operate modern and efficient logistics in sustainable warehouse areas. Well known logistics operators are already established in the area.

All Logicenters developments are certified according to BREEAM certification, to meet Logicenters ambitious sustainability targets.

 

Property facts

Name

Rosbjergvej 11

Area (location)

Aarhus, Brabrand

Country

Denmark

Type

DC

Closest highway

E45

Distance to highway

2 min

Construction year

2025

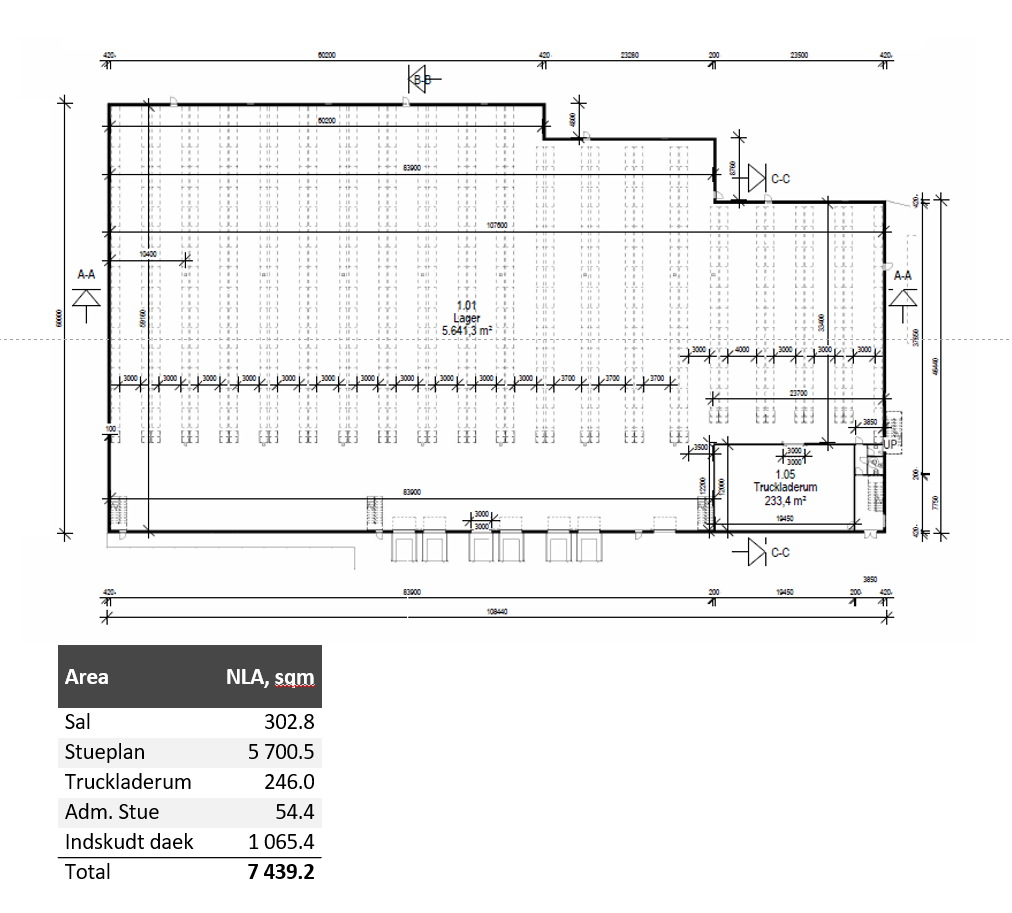
Total area

7 439 m²

Vacant area

7 439 m²

Free clearance

8,3 m

Loading docks

6 + 1

Load bearing

5 000 kg/m²

Nicklas Witten

Asset manager

Rikke Ferrari Thomsen

Commercial Manager

© Copyright NREP 2026 All rights reserved.

Cookie & privacy policy.